Latvian National Theatre

Nacionālā teātra ēka simbolizē Latvijas valsts dibināšanu, Latvijas pirmo simtgadi. Jaunā ēka reprezentē laikmetīgo latviskumu — nākošo Latvijas simtgadi, kuras vērtības ir dabiskums, jūtīgums un atvērtība. Sakņojums Ziemeļeiropas kultūras telpā, jūtīgums pret vidi un vēsturi padara mūsu eksistenci dziļāku un jēgpilnāku, savukārt atvērtība pasaulei paver jaunus apvāršņus un ļauj mūsu kultūrai attīstīties.

Location
Kronvalda bulvāris 2
Phase
Metu konkurss
Function
Teātris
Plot of land
3468 m²
Area
10850 m²
Date
January 1, 2015

Saglabājot vēsturiskās teātra ēkas nozīmīgumu un uzsverot ainavas potenciālu, projekts paredz integrēt vēsturisko ēku, jaunbūvi, pilsētas kanālmalu un Kronvalda parka zonu vienotā, loģistiski funkcionējošā struktūrā. Jaunbūves arhitektoniskais tēls ar iejūtību pret vēsturi iekļaujas apkārtējās apbūves kvartālos un ainaviskajos kanālmalas apstādījumos. Jumta formas atkāpjas, reaģējot uz esošo koku vainagiem, nodrošinot saules piekļuvi parkam un sasaucoties ar vēsturiskās teātra ēkas barokālo jumta līniju. Pacilājošu, ēterisku mākslas klātbūtnes sajūtu rada jaunās ēkas jumta dekoratīvās apdares materiāls — svinīgi mirdzošās pulētā metāla plāksnes, kurās reflektējas debesis un saule.

Saglabājot vēsturiskās teātra ēkas nozīmīgumu un uzsverot ainavas potenciālu, projekts paredz integrēt vēsturisko ēku, jaunbūvi, pilsētas kanālmalu un Kronvalda parka zonu vienotā, loģistiski funkcionējošā struktūrā. Jaunbūves arhitektoniskais tēls ar iejūtību pret vēsturi iekļaujas apkārtējās apbūves kvartālos un ainaviskajos kanālmalas apstādījumos. Jumta formas atkāpjas, reaģējot uz esošo koku vainagiem, nodrošinot saules piekļuvi parkam un sasaucoties ar vēsturiskās teātra ēkas barokālo jumta līniju. Pacilājošu, ēterisku mākslas klātbūtnes sajūtu rada jaunās ēkas jumta dekoratīvās apdares materiāls — svinīgi mirdzošās pulētā metāla plāksnes, kurās reflektējas debesis un saule.

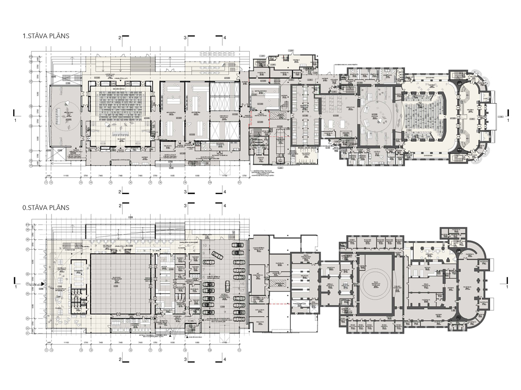
Lai ļautu teātrim attīstīties kā starptautiski konkurētspējīgai un aicinošai kultūras norišu telpai, projekts paredz apvienot teātra telpas funkcionējošā kompleksā ar ērtu plānojumu, plašu darbnīcu, administrācijas un aktieru telpu apjomu. Jaunbūves daļā paredzētas trīs mēģinājumu zāles — Lielā zāle ēkas pirmajā stāvā, ar stiklotu, pret parku vērstu sienu, ko iespējams arī aizvērt ar skaņu absorbējošiem paneļiem, un abas mazās zāles, kas izvietotas piektajā stāvā. Jaunā "BLACK BOX" zāle ar ietilpību līdz 400 skatītājiem, kuras plānojums un grīdas tehnoloģija ļauj veidot skatuvi jebkurā telpas vietā, attiecīgi pakārtojot skatītāju izvietojumu. Ēkas vidusdaļā izvietots dekorāciju darbnīcu un noliktavu komplekss, savienots ar kravu piegādes zonu, kravas liftu un 5,25m augstu tehnisko gaiteni. No Kronvalda bulvāra puses veidota jauna, vienota ieeja teātra personālam, no kuras var nokļūt personāla telpās gan jaunbūves apjomā, gan teātra vēsturiskajā daļā vestibila jaunās kāpnes un lifts savieno visus sešus ēkas stāvus.

Ēkas arhitektūra un funkcionalitāte pauž, ka jaunais teātris ir atvērts pilsētvidei, nebaidās būt saskarsmē ar savu publiku. Teātris iznāk ielās, laukumos un parkā, jūt laikmetīgās pasaules ietekmes un piedalās globālos procesos, tādējādi bagātinot nacionālo kultūru. Publiskās telpas lielie stiklojumi sapludina teātri ar pilsētvidi, ļauj pieskarties teātra noslēpumam. Teātra kodols — izrāžu, mēģinājumu, radošo darbnīcu zāles – ir atvērtas pret Kronvalda bulvāri, kļūstot par dzīvo teātri, ko iespējams vērot, braucot tramvajā vai pastaigājoties pa bulvāri. Projekts paredz kanālmalā veidot amfiteātri brīvdabas priekšnesumiem un koncertiem, paplašinot jaunrades telpu ārpus ēkas sienām, kā arī veidot jaunu kuģīšu piestātni, nodrošināt ērtu piekļuvi teātrim un būtiski uzlabot vides pieejamību. Saglabājot Kronvalda bulvāra liepu rindu un esošos apstādījumus, kā arī likvidējot auto iebraukšanu alejā, tiek veicināta Simtgades alejas ilgmūžība.‍